
一、BQW/ISW臥式管道離心泵產品簡介
ISW、BQW、BQWR型臥式管道離心泵用于空調、采暖、衛生用水、水處理、冷卻、冷凍系統,液體循環和供水、增壓機灌溉等領域中無腐蝕的冷水和熱水輸送。根據使用溫度、介質等不同在BQW型基礎上派生出適用BQWR熱水泵、BQWH耐腐蝕化工泵、BQWY油泵。該系列臥式管道離心泵產品具有高效節能、噪音低、性能可靠等優點。
可應用于:冷卻塔系統、供暖系統、中央空調水泵、管道增壓泵
供暖泵房、空調泵房、冷卻塔噴淋泵、冷卻水循環泵
二、BQW/ISW臥式管道離心泵產品特點:
運行平穩:泵軸的同心度及葉輪優異的動靜平衡,保證平穩運行,絕無振動。
滴水不漏:不同材質的密封,以確保不同介質輸送時無泄漏。
噪音低:兩個低噪音軸承支撐下的水泵,運轉平穩。
故障率低:結構簡單合理,整機無故障工作時間大大提高。
維修方便:更換密封、軸承,簡易方便。
占地更省:出口可向左、向右、向上三個方向,便于管道布置安裝,節省空間。
三、BQW/ISW臥式管道離心泵工作條件:
1、系統設計工作壓力為1.6MPa內,即泵吸入口壓力+泵揚程≤1.6MPa (泵系統工作壓力大于.6MPa時應在訂貨時另行提出,以便在制造泵的過流部件和聯接部件時采用其他材質);
2、輸送介質為清水或物理化學性質類似清水的其它液體;
3、環境溫度≤40℃,海拔高度≤1000m,相對濕度≤95%。
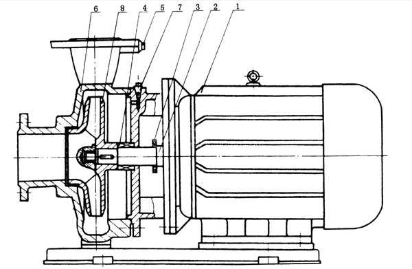
四、BQW/ISW臥式管道離心泵結構圖:

1 電動機:銅線圈,直接與水泵聯接傳送動力,。
2 泵軸:常規是與電機同軸,確保了軸的同心,使泵運轉平穩。也可以根據需要套軸設計,來配套標準軸電機。
3 擋水圈:防止因密封漏水而使電機進水。
4 機械密封:采用不銹鋼、碳化鎢、氟橡膠等材料制成。平衡式耐高溫。高壓機械密封,運行壽命長,不滲漏,對軸無磨損,不積水垢,保證工作環境的整潔。
5 取壓塞:可安裝壓力表直觀監控泵的正常高效運行
6 泵體:壓出塞和吸入室采用優秀水力模型設計而成,既美觀又高效,設有安裝底腳,便于安裝和運行穩固。
7 放氣塞:灌泵時排凈泵內空氣,保證了泵的正常啟動。
8 葉輪:采用先進的水力模型設計而成,具有高效率,可靠性好等特點。

